Architectural Service Telford Shropshire

Loft Conversion Architectural Services Telford

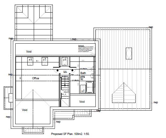
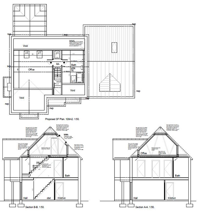
In the realm of architectural design and innovation, Dawley Architectural stands out as a beacon of excellence. Catering to those who seek to maximise their living spaces without relocating, this firm specialises in the intricate art of loft conversions.

At the heart of Dawley Architectural is a belief that every unused loft space holds untapped potential. Whether you're envisioning an extra bedroom, a personal office, or a bespoke studio, the team at Dawley ensures that your vision comes to life. Leveraging years of expertise, they understand that a loft conversion isn't just about adding space—it's about enhancing quality of life.

What sets Dawley Architectural apart from others?

Bespoke Designs

Recognizing that every home and homeowner is unique, Dawley Architectural provides tailor-made solutions. Their designers diligently work with clients, understanding specific needs, and integrating them into creative designs.

Expertise & Experience

With a rich history of satisfied clients, Dawley Architectural boasts a portfolio that's a testament to their skill. Their experience ensures that every project, regardless of its complexity, is completed to the highest standards.

Full-Service Approach

From initial consultation to the final touches, Dawley Architectural handles every aspect of the conversion process. This includes securing planning permissions, ensuring structural integrity, and coordinating with expert builders.

Sustainability

Understanding the importance of eco-friendly designs, Dawley Architectural incorporates sustainable methods and materials wherever possible, ensuring your new space isn't just beautiful but also environmentally conscious.

Client-Centric Philosophy

At the core of their operations is an unwavering commitment to client satisfaction. Feedback is valued, and communication lines are always open, ensuring a smooth, collaborative journey.

In a world where space is at a premium, Dawley Architectural offers a solution that's both practical and transformative. If you've ever looked up at your loft and imagined the possibilities, Dawley Architectural is the company that can make those dreams a reality.

Dawley Architectural – where innovation meets impeccable design.

Velux  |  Insulation  |  Kingspan


Architect Telford Shropshire

New Build Architectural Services  |   Barn Conversion Architectural Services  |   Building Extension Architectural Services  |   Loft Conversion Architectural Services  |   Listed Building Architectural Services  |   Residential Property Architectural Services

© Copyright Dawley Architectural Limited 2026.